Direkt zum Inhalt
Startseite

Holzfenster mit schönen schmalen Profilen

  • Home
  • Fenster & Türen
  • Kontakt
  • Impressum
  • Berliner Fenster
    • Gestaltungsbeispiele
    • Detailfotos
    • Informationen
  • Berliner Warmfenster
  • Hamburger Fenster
  • Dänisches Fenster
  • Dänisches Holz-Alu-Fenster
    • Gestaltungsbeispiele
    • Detailfotos
    • Informationen
  • Standardfenster
    • Gestaltungsbeispiele
    • Detailfotos
    • Informationen
  • Standard Holz-Alu-Fenster
  • Haustüren
  • Denkmalschutz
  • Allgemeine Informationen

Standradfenster - Informationen

Standard Falttueren - Linie
Standard Falttueren - Linie
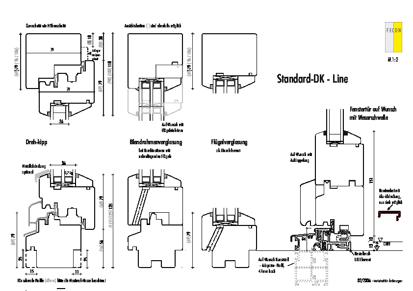
Standard Fenster - Linie-IV79
Standard Fenster - Linie-IV79
Standard Haustuer - Linie
Standard Haustuer - Linie
Standard Hebe-Schiebetueren - Linie
Standard Hebe-Schiebetueren - Linie
Standard PSK-Tuer - Linie
Standard PSK-Tuer - Linie
Standard-Gesamtdaemmwerte-Uw-alle
Standard-Gesamtdaemmwerte-Uw-alle